Aya Residence Amintas. Um movimento artístico do térreo ao topo.
Torre única
29 pavimentos
Entrega: Março de 2030
Lojas em galeria
Acesso pelo térreo na Rua Conselheiro Araújo tanto pela Rua Amintas de Barros
Independentes da área residencial
Estrutura convencional com pilares e laje de concreto armado de acordo com projeto específico.
O mezanino das lojas será entregue em concreto.
A escada será entregue em estrutura metálica
Paredes entre lojas e divisas com áreas comuns: em alvenaria convencional
Paredes dos banheiros: de alvenaria convencional ou dry wall
Ar-condicionado: será deixada a previsão de carga no quadro elétrico
Piso: contrapiso
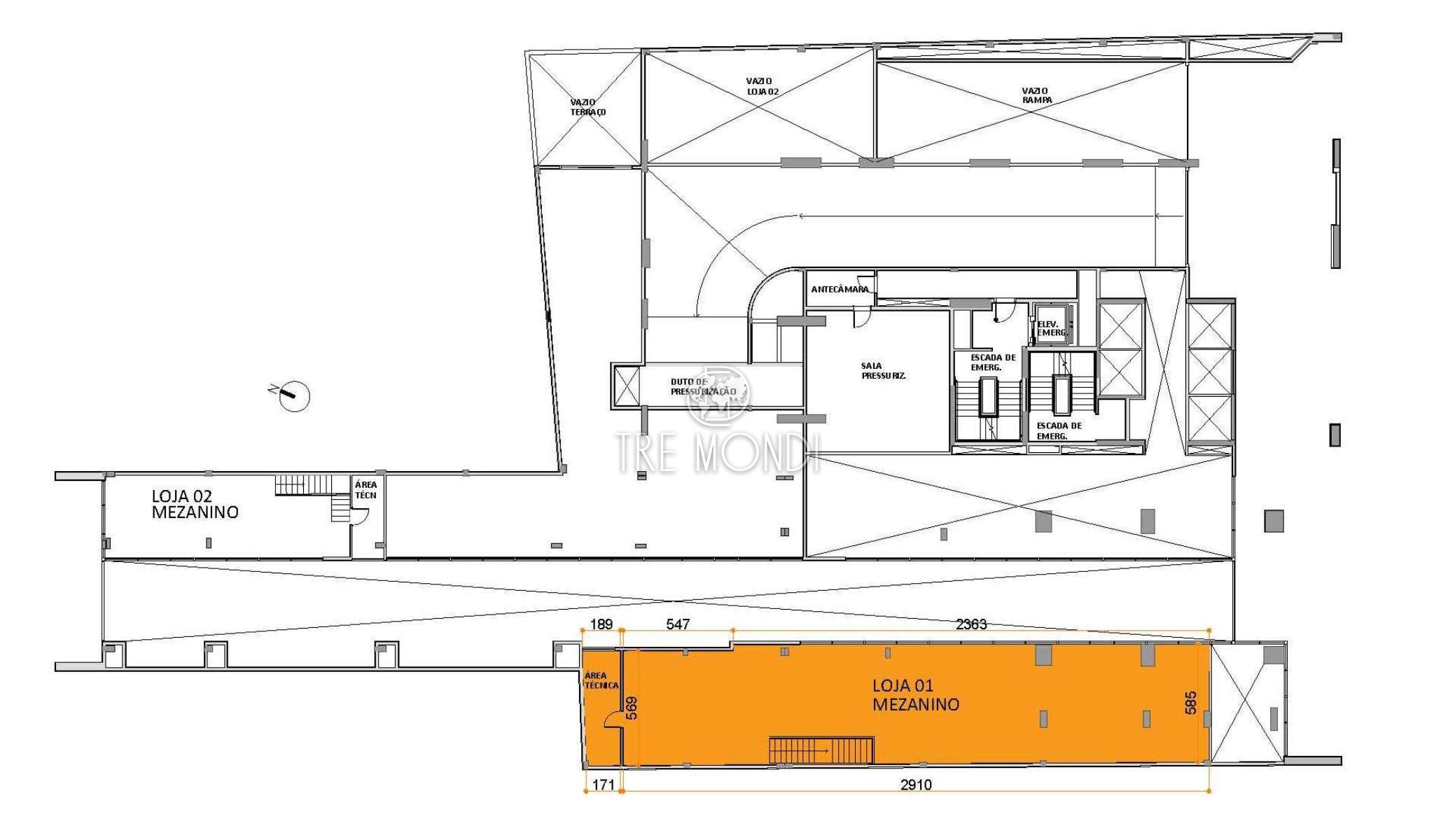
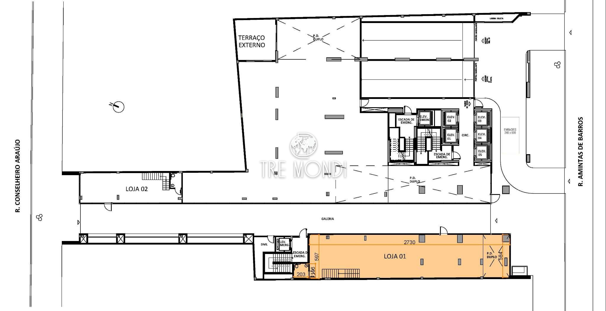
Loja 1:
Térreo: 178,66m²
Mezanino: 195,32m²
Área total: 373,98m² privativos
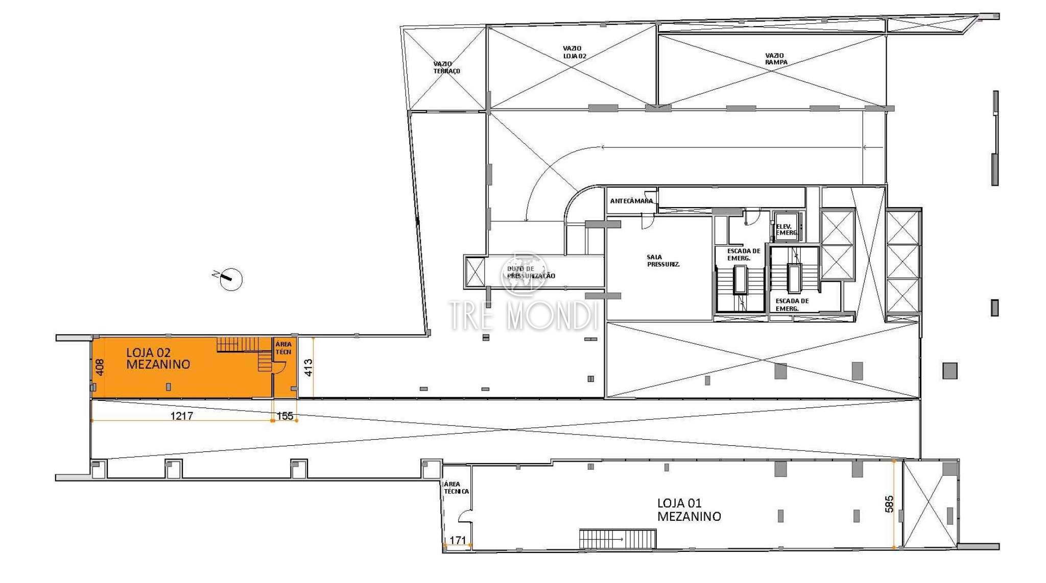
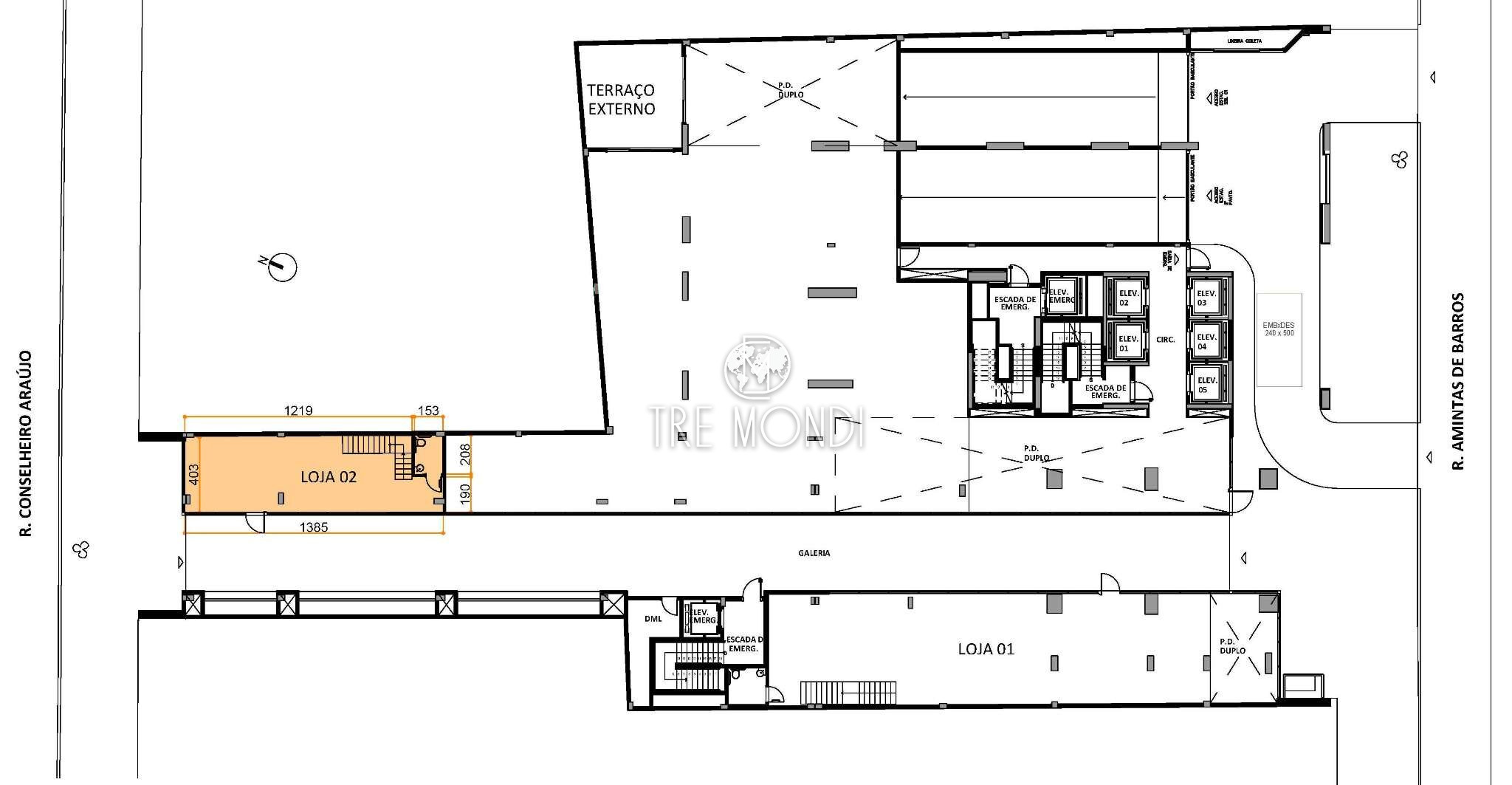
Loja 2:
Térreo: 62,82m²
Mezanino: 62,99m²
Área total: 125,81m² privativos
Bairro:
Perto do Centro, vizinho do verde e rodeado por tudo o que importa. O Aya Residences Amintas está entre o charme histórico e a vibração contemporânea, do Passeio Público e do Centro de Curitiba. Um endereço com alma própria. Ideal para morar, perfeito para investir.
OBS:
*Valores sujeitos à alteração sem aviso prévio, consulte a disponibilidade e valores atualizados.
*Os valores de condomínio e IPTU são apenas a título de referência e devem ser levantados junto ao corretor.
*A área do imóvel e idade precisam ser confirmadas com o corretor ou em sua documentação, bem como o número de vagas.
*O anúncio pode conter fotos em perspectiva meramente ilustrativas ou de imóvel decorado.
Aya Residences Amintas / Blue
| Referência | TN1188 |
| Endereço | Rua Amintas de Barros, 265 |
| Complemento | Loja 1 |
| Edificio | Aya Residences Amintas |
| Bairro | Centro |
| Município | Curitiba |
| UF | PR |
| Área total | 420,00 m² |
| Área privativa | 373,98 m² |
| Tipo de uso | comercial |
| Sacada | Sim |
| Banheiros | 1 |
| Tipo de portaria | 24 hs |
| Ano de construção | 2030 |
| Valor total | R$ 3.143.746,00 |
| Condomínio | R$ 10,00 |
| Iptu | R$ 10,00 |
Entre em contato para mais informações